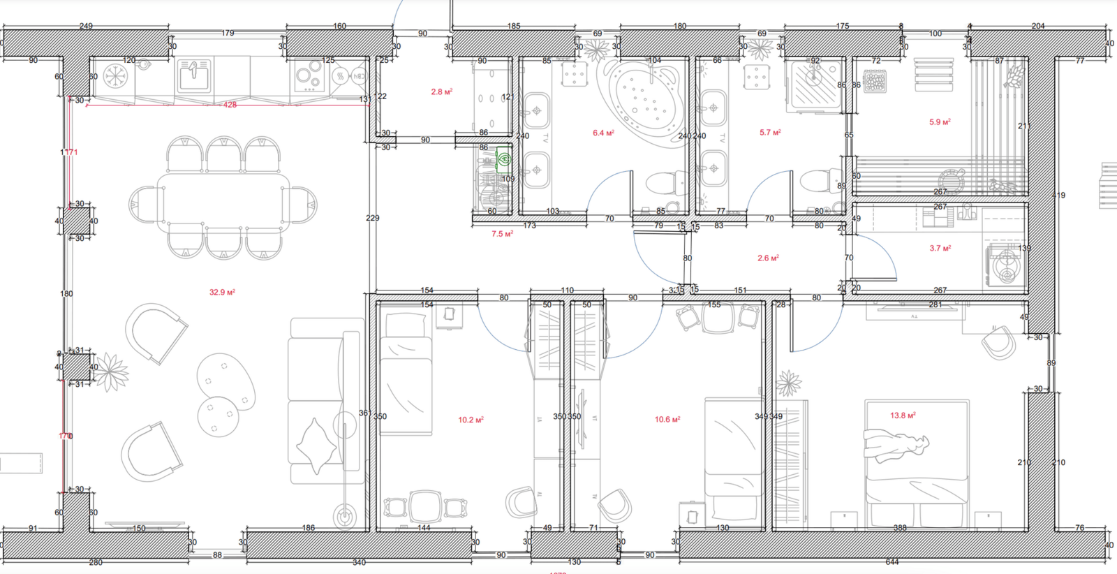
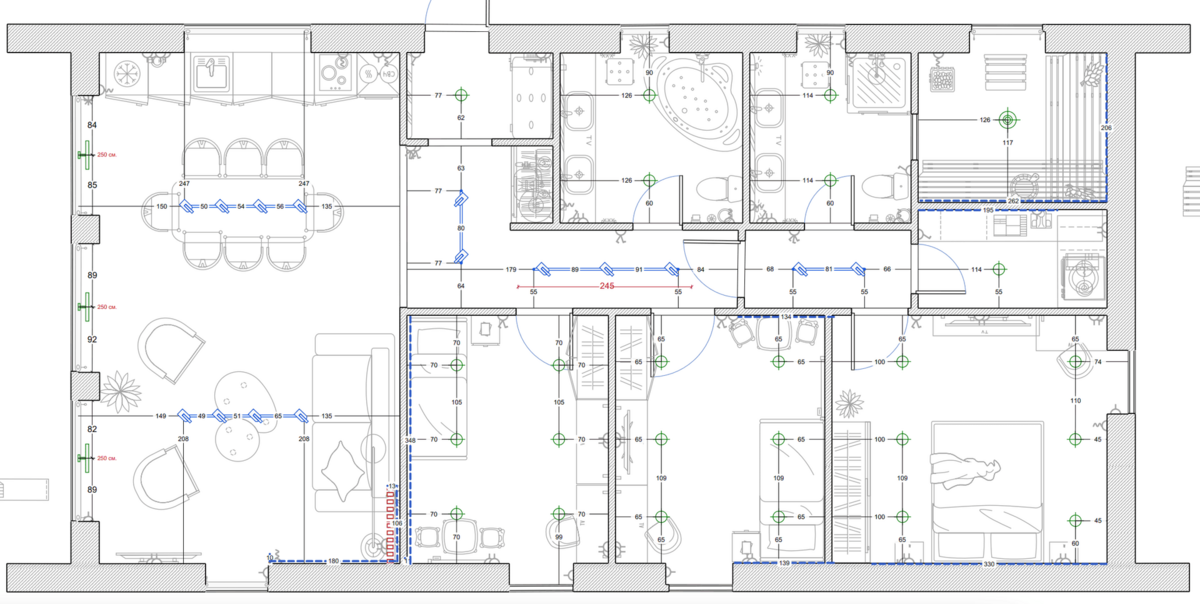
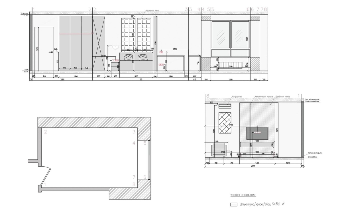
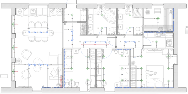
До
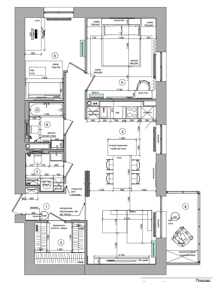
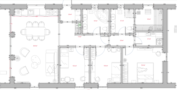
После
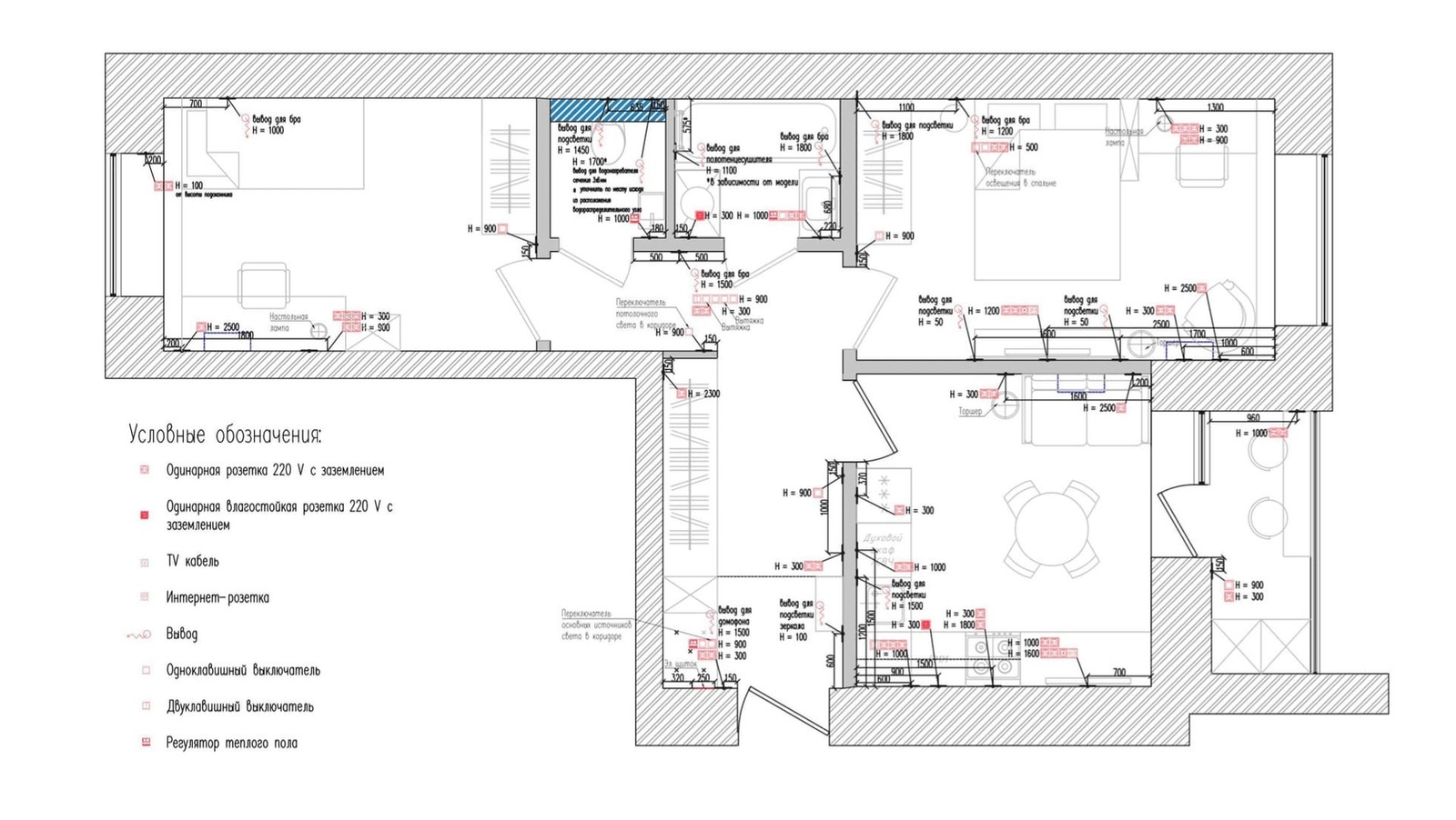
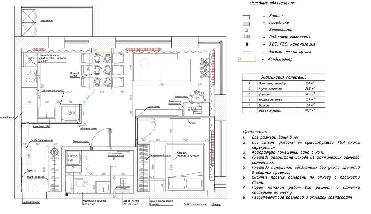
До
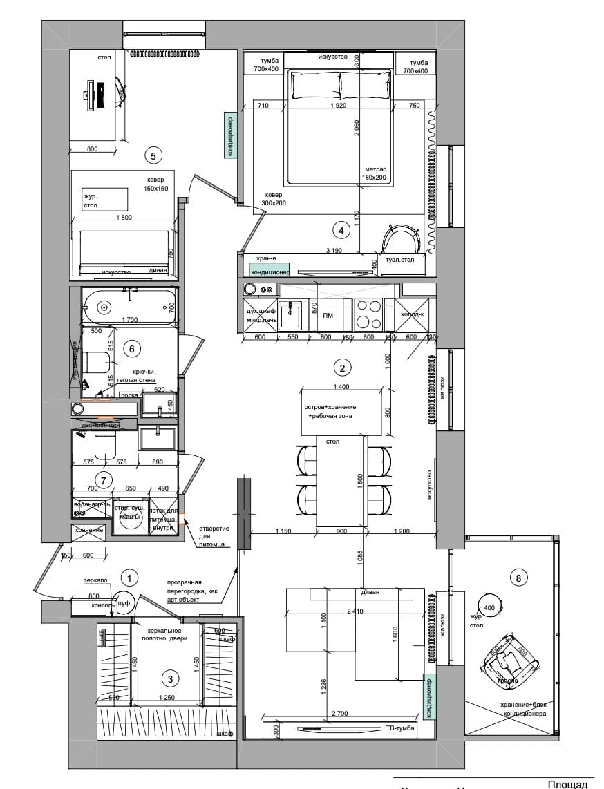
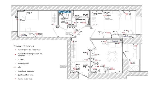
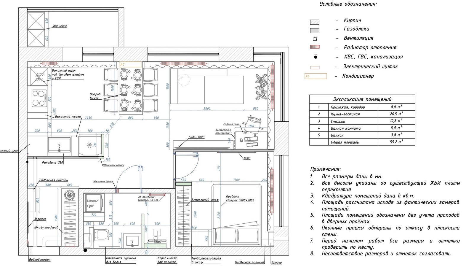
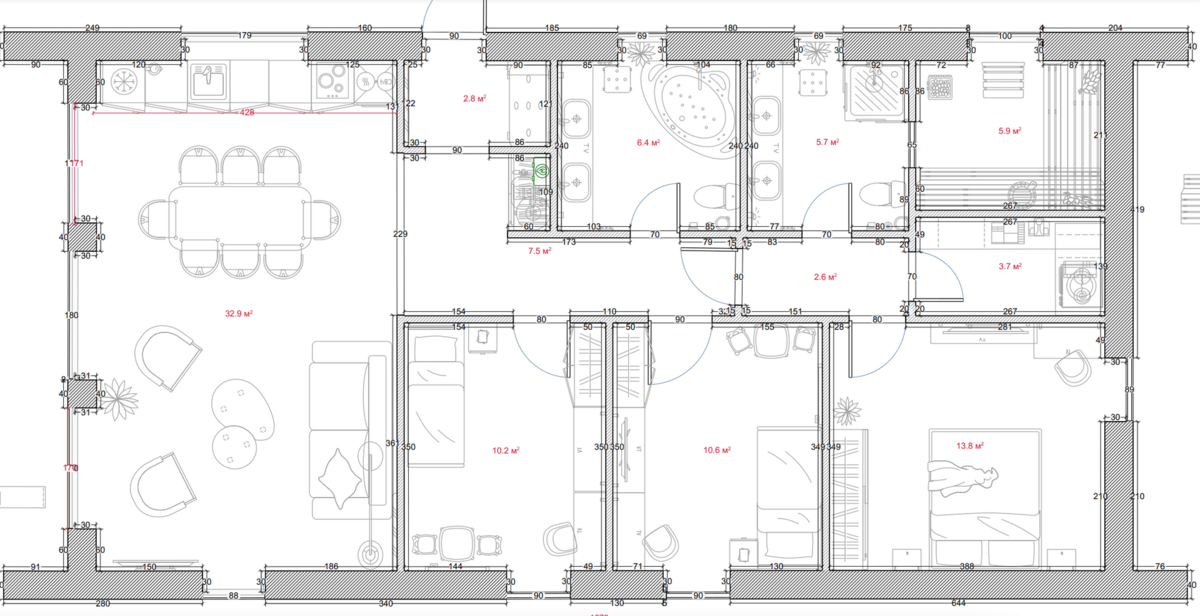
После


